-
Superficie
82 mq
-
Camere
2
-
Bagni
1
-
Locali
4.0
Descrizione
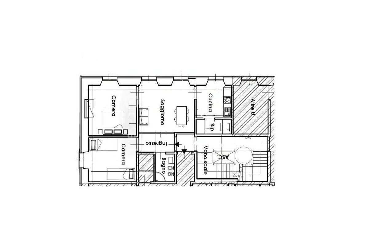
Nel cuore di Lavagna, a soli 200 metri dal mare, proponiamo in vendita appartamento di 82 mq inserito in un palazzo storico edificato nel 1890, oggetto di ristrutturazione integrale conclusa nel 2024.
L’appartamento, posto al primo piano con ascensore, si presenta come nuovo, ideale come residenza principale di livello, seconda casa al mare o investimento di pregio.
Internamente è così composto:
Ingresso, ampio soggiorno, cucina abitabile (con possibilità di ricavare secondo bagno), 2 camere da letto entrambe matrimoniali, infine bagno.
Particolarità UNICA nel suo genere: tutti i locali hanno soffitti con affreschi originali!
La posizione è particolarmente strategica: centro storico pedonale, mare raggiungibile a piedi in pochi minuti, servizi, stazione ferroviaria e negozi nelle immediate vicinanze.
Soluzione rara sul mercato per qualità dell’intervento, efficienza energetica, presenza dell’ascensore e vicinanza al mare.
L’edificio, sviluppato su tre livelli e composto da sole 6 unità immobiliari, è stato completamente riqualificato sotto il profilo strutturale, impiantistico ed energetico, mantenendo il fascino dell’architettura originale e integrandolo con comfort abitativi contemporanei.
Interventi principali
• ✔ Miglioramento sismico certificato
• ✔ Impianti completamente nuovi e a norma
• ✔ Facciata e tetto rifatti
• ✔ Ascensore interno
• ✔ Classe energetica A2
Dati principali
• ???? Via Colombo 33 – Lavagna (GE)
• ???? Superficie: 82 mq
• ????️ Palazzo storico del 1890
• ???? Ristrutturazione completa 2024
• ???? Ascensore
• ⚡ Classe energetica A2
• ???? Edificio con 6 unità immobiliari
• ???? 200 mt dal mare
• ???? Prezzo: € 349.000



























